首页 案例 家装案例 北京海淀颐源居——侵染

北京海淀颐源居——侵染

北欧 / 三居室 / 110m²/ 25万元
2018-04-04 16:28:52发布      

案例简介

设计风格:简约北欧 项目地址:北京海淀颐源居 设计面积:110㎡ 设计单位:北京艺思维室内设计有限责任公司 主案设计师:周维 简约北欧风格以简洁著称于世,并影响到后来的“极简主义”、“简约主义”、“后现代”等风格。在20世纪风起云涌的“工业设计”浪潮中,简约北欧风格的简洁被推到极致。北欧风格将德国的崇尚实用功能理念和其本土的传统工艺相结合,富有人情味的设计使得它享誉国际。

设计风格:北欧

设计面积:110㎡

设计师:周维

北京海淀颐源居——侵染

创意的玄关柜把冰箱包裹其中,厨房推拉门的设计很是新颖,也摆脱了门后三角区空间的浪费。

北京海淀颐源居——侵染

方,圆搭配一直是经典的代表,舒适、和谐。

北京海淀颐源居——侵染

悬空的储物柜极具艺术性与现代感。直角的设计很好的隐藏了空调的位置。

北京海淀颐源居——侵染

水墨与布艺让空间柔软舒适。

北京海淀颐源居——侵染

巧妙的设计玄关隔断柜,美观实用有创意。

北京海淀颐源居——侵染

餐厨空间操作便利,吊灯的形式和款式增加空间美感。

北京海淀颐源居——侵染

异形厨房,橱柜也跟着户型变化,充分利用空间。

北京海淀颐源居——侵染

功能齐备,悠闲自在的卧室空间。

北京海淀颐源居——侵染

合理划分空间,让设计融入生活,营造自然,品味,格调。

北京海淀颐源居——侵染

这里也安装电视,追剧的时候不用抢频道。

北京海淀颐源居——侵染

壁灯解放床头柜,夜间灯光也更柔和。

北京海淀颐源居——侵染

因为卫生间空间够大,所以门口放置了洗衣机,柜子设计合理空间利用完美。

北京海淀颐源居——侵染

敲掉飘窗做了写字台,美美的一幅壁画,心情更加愉快。

北京海淀颐源居——侵染

儿童房刷成浅绿色,吊灯也用了相近色,款式可爱。

北京海淀颐源居——侵染

巧妙地布置壁挂书架,最得意的还是衣柜边角的弧形设计,你喜欢吗?

北京海淀颐源居——侵染

公卫也是异形空间,所以决定用折叠门来节省空间。

北京海淀颐源居——侵染

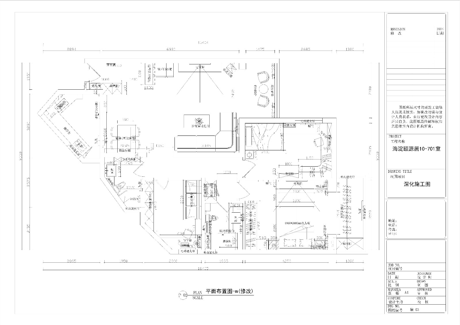
平面布置图

北京海淀颐源居——侵染

原始结构图

收藏

4人已收藏

全部评论 0

    更多评论