首页 案例 家装案例 梦想家

梦想家

北欧 / 三居室 / 130m²/ 50万元
2018-03-25 08:33:48发布      

案例简介

梦想家设计说明 这是一个以新自然主义风格为主线,巧妙融入北欧、轻奢、新中式风格而打造出的作品。既有自然惬意的表达,又体现出品质和精致生活的状态。 房子主人是设计师老客户介绍的,从前期设计到后期配饰都比较放权,因此可以看得出作品完成度颇好,在和谐的风格中给人一种赏心悦目之美。 房子主人是一对讲求生活舒适和格调的夫妻,还有一位活泼可爱的女孩。室内尝试恒温恒湿、恒氧集成设备,大大提高在北京居住的生活舒适度。客厅大落地窗带来了丰沛的光线和明朗的好心情,客厅内合理的布局、温情的配饰和窗外绿意盎然的春色呈现出相互交织的美景,让人进入客厅后便会有一种轻松、悠闲的好心情。 成品家具全为纯实木家具,胡桃色彰显稳重和高贵,家具弧度的设计最大程度保证了孩子在家玩耍的安全性和柔性之美。地毯和沙发墙上的油画相呼应,迅速勾勒出房间主人不凡的艺术品位,又给人一种贴近大自然的亲切和浪漫感。 空间上厨房和餐厅之间打开了,让平层也能住出别墅的气息。餐厅背景墙上几个多边形的配饰,无论是形状还是绘作都给人轻松之感,而鸟笼灯的设计更是让人压力顿消,倍感惬意。酒柜和壁橱等的合理组合,既突出了功能,又增加了一份格调。 儿童房释放天性,公主粉的主题延续整个空间搭配。主卧大气沉稳,闲暇时夫妻二人品茶畅聊享受美好时光。书房营造安静惬意的空间感受,漫游在知识的海洋是如此享受。榻榻米等的合理设计,让有限的空间得到充分利用,给人一种静谧自由的感受。 不管是客厅卧室,还是餐厅、厨房,设计师在充分了解了房间主人的习惯喜好后,对室内装饰、器物陈设、色调搭配、 装饰手法等作出了最恰当的选择,做到了既要考虑美观,又注重健康,同时还通过色彩的点缀,让空间感觉更灵活多变,让人感受到深厚的布局和设计功力。

设计风格:北欧

设计面积:130㎡

设计师:江建业

北欧玄关吊顶实景图

北欧客厅吊顶实景图

北欧客厅其它实景图

北欧客厅吊顶实景图

北欧客厅其它实景图

北欧客厅其它实景图

北欧餐厅吊顶实景图

北欧餐厅吊顶实景图

北欧餐厅吊顶实景图

北欧餐厅其它实景图

北欧餐厅其它实景图

北欧卫生间吊顶实景图

北欧卧室背景墙实景图

北欧卧室其它实景图

北欧卧室飘窗实景图

北欧卧室其它实景图

北欧卧室其它实景图

北欧卧室榻榻米实景图

北欧客厅吊顶实景图

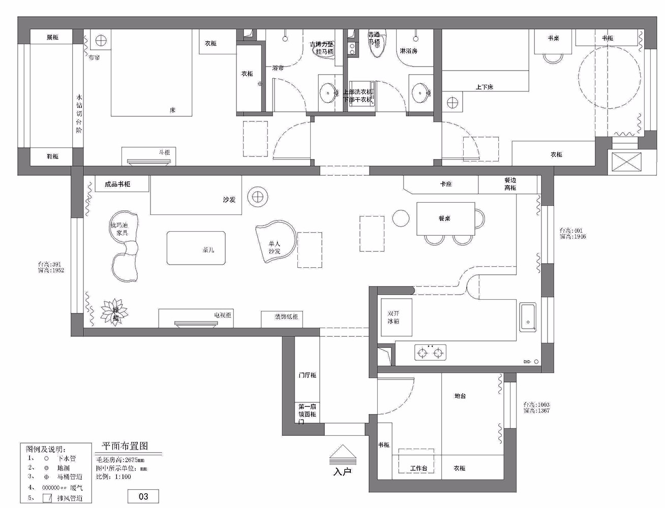
梦想家平面图

梦想家平面图

收藏

4人已收藏

全部评论 0

    更多评论